Détail annonce

Annonce 16 sur 19
49 Maine-et-Loire Ombrée d'Anjou (Noëllet) 83 840 €
Maison
Vente

80 000 € + Honoraires de négo. TTC : 3 840  €
Soit 4,80% à la charge de l'acquéreur
Barème des honoraires de négociation

Informations complémentaires

Nombre de pièces : 5
Nombre de chambres : 3
Surface habitable : 75 m2
Surface terrain : 2527 m²
Chauffage : Fioul
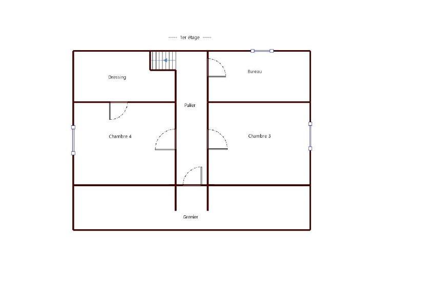
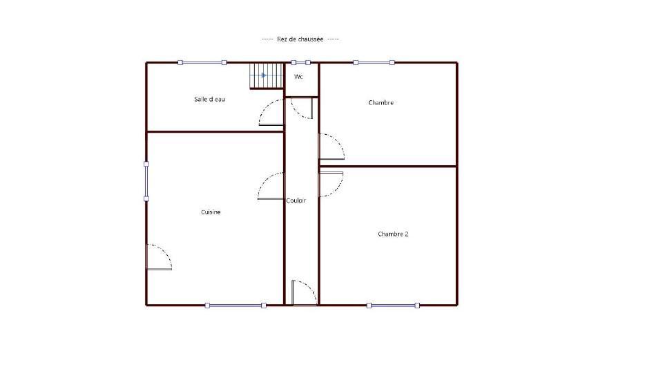
NOELLET - Maison comprenant entrée, cuisine aménagée et équipée, séjour, une chambre, salle d'eau, WC A l'étage : couloir desservant 2 chambres, un coin rangement Cave, dépendance, puits. Travaux à prévoir Les informations sur les risques auxquels ce bien est exposé sont disponibles sur le site géorisques : wwww.georisques.gouv.fr
Ref.: 49092-938
Prix : 83 840 €
80 000 € + Honoraires de négo. TTC : 3 840  €
Soit 4,80% à la charge de l'acquéreur

Diagnostic performances energétiques (réalisé le 14/03/2025)

Consommation énergétique (dont Émissions de gaz à effet de serre)
Consommations énergétiques (en énergie primaire) pour le chauffage, la production d’eau chaude sanitaire et le refroidissement
Indice de mesure : kWhEP/m2.an
Emissions de gaz à effet de serre (GES) pour le chauffage, la production d’eau chaude sanitaire et le refroidissement
Indice de mesure : kgeqCO2/m2.an
Logement à consommation énergétique excessive
Estimation annuelle des coûts d'énergie du logement
Les coûts sont estimés en fonction des caractéristiques de votre logement et pour une situation standard sur 5 usages (chauffage, eau chaude sanitaire, climatisation, éclairage, auxiliaires).
Montant estimé des dépenses annuelles d'énergie pour un usage standard entre 3020 € et 4110 € sur les années 2021, 2022 et 2023 (abonnements compris)

Etat des risques

Les informations sur les risques auxquels ce bien est exposé sont disponibles sur le site Géoriques : www.georisques.gouv.fr
 
SELARL ANJOU BLEU NOTAIRES
1 Esplanade de la Gare 49500 Segré-en-Anjou Bleu
Tél. : 02.41.92.11.23
Fax : 02.41.61.08.04
Email : negociation.49092@notaires.fr
Nº SIRET ou SIREN : 409 051 018 00011
 
Vous avez des questions à poser sur cette annonce ?
N'hésitez pas à contacter l'étude.
 
Merci de recopier les chiffres suivants pour contrôler l'envoi*.
Vos informations personnelles (nom, prénom, email, téléphone, commentaire) sont collectées avec votre consentement et sont destinées à SELARL ANJOU BLEU NOTAIRES en sa qualité de responsable du traitement. Ces informations sont collectées afin de répondre à votre demande de contact ou de renseignements. Ces informations ne sont pas stockées dans une base de données, elles sont uniquement transférées par email à SELARL ANJOU BLEU NOTAIRES qui se chargera de supprimer ce dernier après avoir entièrement traité votre demande ou votre dossier.
Conformément à la loi "informatique et libertés" et au RGPD, vous pouvez exercer vos droits d'opposition, d'accès, de rectification, d'effacement, de limitation et de portabilité en effectuant une demande à l'adresse suivante : cil@notaires.fr. Vous pouvez également adresser une réclamation auprès de la CNIL directement via son site internet https://www.cnil.fr.

MEDIATION : En cas de litige non résolu avec un notaire, vous avez la possibilité de saisir le Médiateur du notariat à l'adresse suivante : mediateurdunotariat@notaires.fr, ou à 60 boulevard de la Tour Maubourg 75007 Paris afin de tenter, avec son aide, de trouver une résolution amiable au conflit. Plus d'informations sur : mediateur-notariat.notaires.fr.

* Le renseignement des champs marqués d'un astérisque est obligatoire en vue de valider votre demande. Les autres champs, non obligatoires, ont pour seul objectif de préciser votre demande et de mieux vous connaître.

** Nous vous informons de l'existence de la liste d'opposition au démarchage téléphonique "BLOCTEL" sur laquelle vous pouvez vous inscrire www.bloctel.gouv.fr.


Annonce 16 sur 19

Trouver un bien

LocalisationLoire-Atlantique (44) : 1 annonceMaine-et-Loire (49) : 18 annonces
Achat
Location
Choisir une commune Localité étendre sur
Type de bien
Référence
Surface Mini Max m2
Budget Mini Max
Filtre Annonces avec photos et/ou visites virtuelles
Annonces de moins de 30 jours
Annonces depuis la dernière connexion
Mentions légales